Alcântara Lofts
Contíguo ao Tejo, a duas marinas e ao novo corredor verde de Alcântara, o Alcântara Lofts é ainda servido pela nova estação ferroviária e por uma completa rede de autocarros e eléctricos.
A área de implantação do Alcântara Lofts surge ainda reforçada com a presença do novíssimo Hospital CUF Tejo.
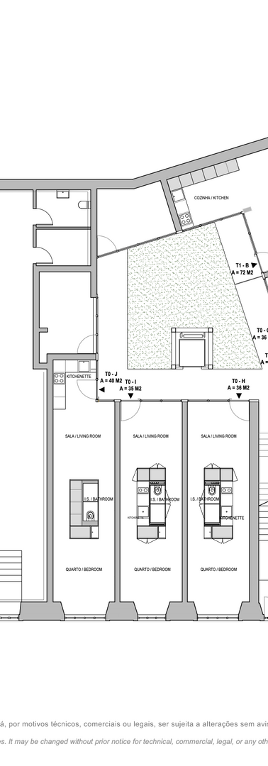
Um projecto do Arq. Manuel Pardal Monteiro com inovadores lofts To a T2 organizados em redor da piscina e da zona verde central, este empreendimento foi claramente pensado para proporcionar uma vida mais saudável e tranquila.

































